Construction Site without Supervisor Part 2
- Geerati Tiasiri
- August 6, 2013
- Ponder
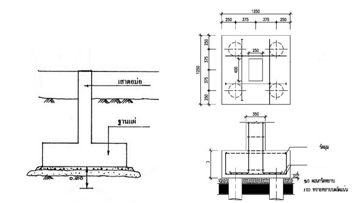
- distribution to footing, FENN DESIGNERS, footing, footing on ground, footing on pile, Geerati Tiasiri, Geotechnical Engineer, Lean concrete, load, Sand bedding, spread footing, structural engineer, การกระจายน้ำหนักสู่ฐานราก, คอนกรีตหยาบ, ฐานราก, ฐานรากบนดิน, ฐานรากบนเสาเข็ม, ฐานรากแผ่, ทรายรองพื้น, วิศวกรปฐพีกลศาสตร์, วิศวกรโครงสร้าง
- 0 Comments


I just could not leave your site prior to suggesting that I actually enjoyed the usual information a person supply…
This is fantastic! Keep up the good work. ❤️
It's interesting to see how glass can be used in so many ways to be converted into art. My husband…